-
Koszyk jest pusty
-
x

-
Koszyk jest pusty
-
x
-
DrewKo – Kocioł zgazowujący drewno 12kW
















Kocioł zasypowy na drewno. Duża i głęboka komora załadowcza, mechaniczne czyszczenie rusztu oraz prosta eksploatacja urządzenia.
Opinie | |
Ilość w opakowaniu | 1 szt. |
Wysyłka w ciągu | 6 dni |
Cena przesyłki | 21.14 |
Dostępność |
Mało
|
Zamówienie telefoniczne: 519166435
Zostaw telefon |
DrewKo, to nasz najnowszy model – kocioł zgazowujący drewno, o doskonałych parametrach grzewczych i kompaktowej, nowoczesnej budowie. Został stworzony z myślą o uniwersalności!
Produkt spełnia wymogi najnowszej normy PN-EN 303-5:2021 uzyskując w akredytowanym laboratorium badawczym znakomite wyniki emisyjności – posiada świadectwa ekoprojektu oraz 5 klasy!
DrewKo to piec dolnego spalania o nieskomplikowanej budowie, ułatwiającej codzienne użytkowanie. Komora paleniskowa pomieści polana o obwodzie 30-40 cm. Czyszczenie rusztu wspomaga zainstalowany wymienny system grzebieni, który uruchamiamy naciskając nogą na zamocowaną przy kotle dźwignię.
Wymogiem prawidłowej pracy kotła jest zainstalowanie go wraz z buforem ciepła odpowiednio do mocy kotła. DrewKo możemy instalować w układzie otwartym oraz zamkniętym do 2bar z zastosowaniem zaworu bezpieczeństwa.
Cechy kotła zgazowującego drewno DrewKo:
- Solidna konstrukcja z wykorzystaniem tylko i wyłącznie atestowanych materiałów,
- Ścięcie wyjścia spalin pod kątem umożliwia podłączenie w każdej kotłowni,
- Wykorzystanie miarkownika ciągu do regulacji przepływu powietrza,
- Efektywne i ekologiczne spalanie,
- Prosta budowa wymiennika, bezproblemowe czyszczenie,
W skład zestawu wchodzi:
- miarkownik ciągu,
- nożny pogrzebacz,
- łopatka do oczyszczania ścianek,
- szczotka do oczyszczania wymiennika,
- cztery stopki regulacyjne,
Nasza firma jako jedna z pierwszych posiada Certyfikat badania typu UE – typ projektu moduł B dla kotłów wodnych z ręcznym zasypem paliwa typu „DrewKo”
Certyfikat potwierdza spełnienie wymagań tego typu kotłów zgodnie z procedurą oceny zgodności dyrektywy 2014/68/UE kategoria zagrożenia: art.4 ust. 2 lit. b (załącznik II tabela 4) oraz Rozporządzenia Ministra Rozwoju z dn. 11.07.2016r. (tekst jednolity Dz.U. 2019. poz.211).
Posiadanie przedmiotowego certyfikatu jest obligatoryjne i upoważnia producenta do wprowadzenia kotłów wodnych z ręcznym zasypem paliwa do obrotu i gwarantuje jego bezpieczeństwo
Moc kotła | 12 |
Zalecana pojemność zbiornika akumulacyjnego | 504 |
Orientacyjna powierzchnia ogrzewanego pomieszczenia |
do 120* do 160** |
Masa kotła | 340kg |
Pojemność wodna kotła | 73 |
Klasa energetyczna | A+ |
Jednorazowy zasyp paliwa | 22 |
Pojemność komory zasypowej | 31 |
Wymiary otworu zasypowego | 295 x 295 |
Zużycie paliwa max. | 2,14 |
Sprawność cieplna | 82,1 |
Paliwo zgodne z normą PN-EN 303-5:2012 |
paliwo Szczapy, polana drewna liściastego – Wartość opalowa – 17 MJ/kg, Wilgotność – 12-20%, Zawartość popiołu ⩽ 1%, Obwód polan 30-40 cm |
Stałopalność | 2h |
Temperatura wody na zasilaniu min/max. | 65/90 |
Max. Dopuszczalne ciśnienie robocze | 2,0 |
Wymagany ciąg kominowy | mbar 0,2 |
Przekrój komina | 140×140 |
Średnica zasilania/powrotu | ø1,5 |
Średnica króćca spustowego | 3/4″ |
Średnica czopucha | ø 160 |
- przy budynkach starszych z gorszą izolacją termiczną 100W/m2
- ** przy budynkach nowszych z lepszą izolacją termiczną 75W/m2
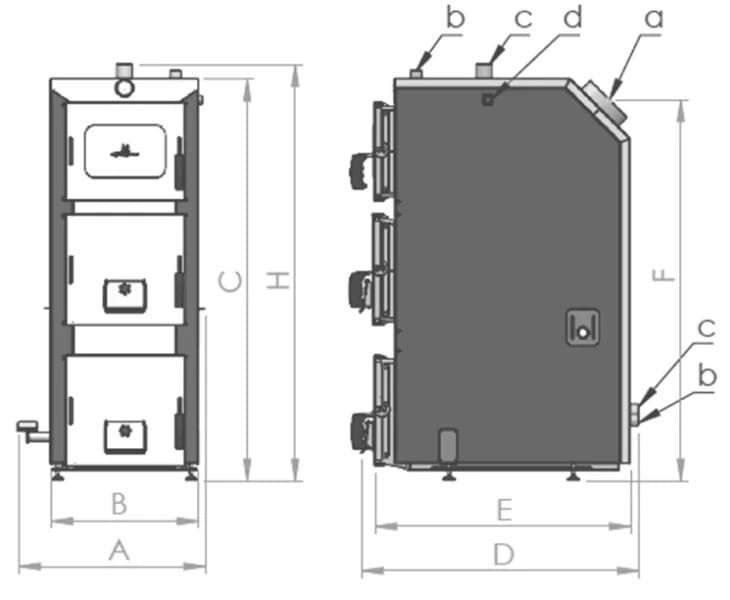
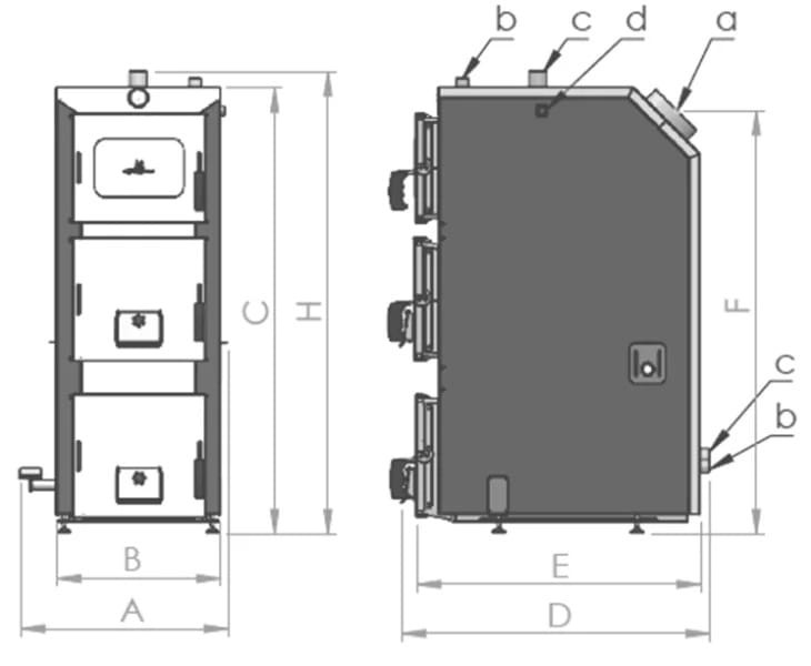
A | 577 |
B | 455 |
C |
1162 |
D | 858 |
E | 790 |
F | 1100 |
H | 1206 |
a | 160 |
b | 1/4 |
c | - |
d | - |
J-głębokośc | 391265 |
K-szerokość | 265 |
L-wysokość | 556 |
- Producenci